Ramintra / Bangkok / Thailand
3,500 Million Baht (100 Million Usd)
Price
Done
Stage
24,000 Sq.m.
Area
Arch./ Int.
Responsibility
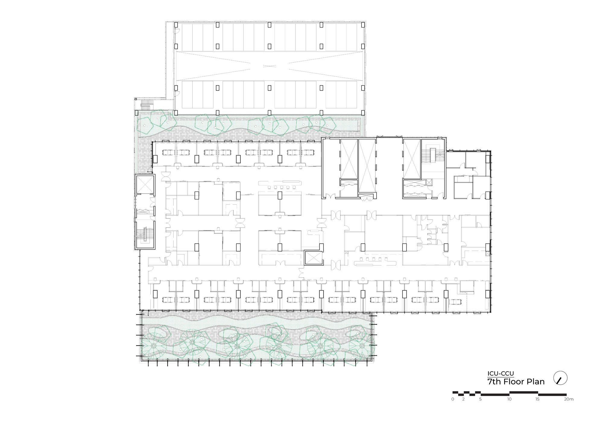
In response to a burgeoning patient population and the desire to maintain its renowned quality care, Synphaet Ramintra Hospital has embarked on the development of a cutting-edge flagship Medical Center in the densely populated capital city of Thailand. This state-of-the-art facility aims to provide a high-tech, patient-centric healing environment that can adapt to the evolving needs of the community.
The façade design is rooted in the concept of “moving forward into the future” and “clean craftsmanship.” Glass, symbolizing cleanliness, takes center stage as the primary material, contributing to a sleek and modern aesthetic.The triangular façade design, incorporating both solid and glass elements, creates a sense of movement and depth, capturing the attention of passersby from both the BTS and road levels. This dynamic use of materials allows observers to perceive subtle changes in motion as they travel past the building, emphasizing the hospital’s commitment to progress.
Leveraging digital tools, the design team effectively navigated the complexities of a programmatically dense structure within a confined site. The result is a facility seamlessly connected to existing structures, fostering collaboration between departments and maximizing flexibility, daylight utilization, patient safety, and staff productivity.
The hospital’s design prioritizes holistic healing, featuring landscaped courtyards and all-private inpatient rooms flooded with natural light and equipped with in-suite bathrooms. Treatment zones are designed for swift action, facilitated by wide double-bays and sliding breakout doors. Transparency and uplifting views are achieved through floor-to-ceiling windows in public spaces, complemented by custom artwork and graphics celebrating the rich heritage of history throughout the hospital.
In essence, the Synphaet Medical Center flagship center is poised to redefine healthcare architecture by seamlessly blending innovation, patient-centric design, and a commitment to community well-being.
Photography credit :


























